2021 Apr 01
Teaching News

Chicago Studio Spring 2021 Midterm Review

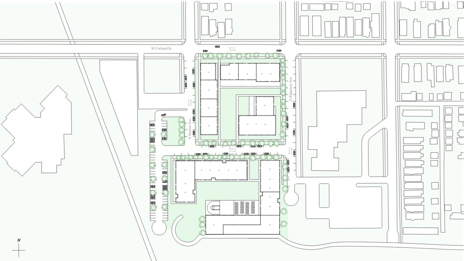
At the Virginia Tech Chicago Studio Spring 2021 midterm review, students presented their work to host firm participants, mentors, and guest critics.

The students were challenged to develop a 240 unit affordable housing complex in the Logan Square neighborhood of Chicago at the western terminus of the 606 trail.

BR Midterm 24Group 1
Mid Review Brussel Kang 25 CopyGroup 2