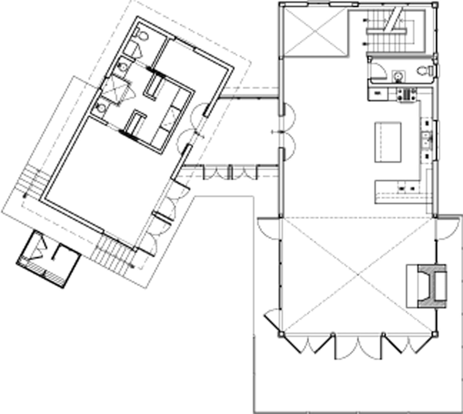
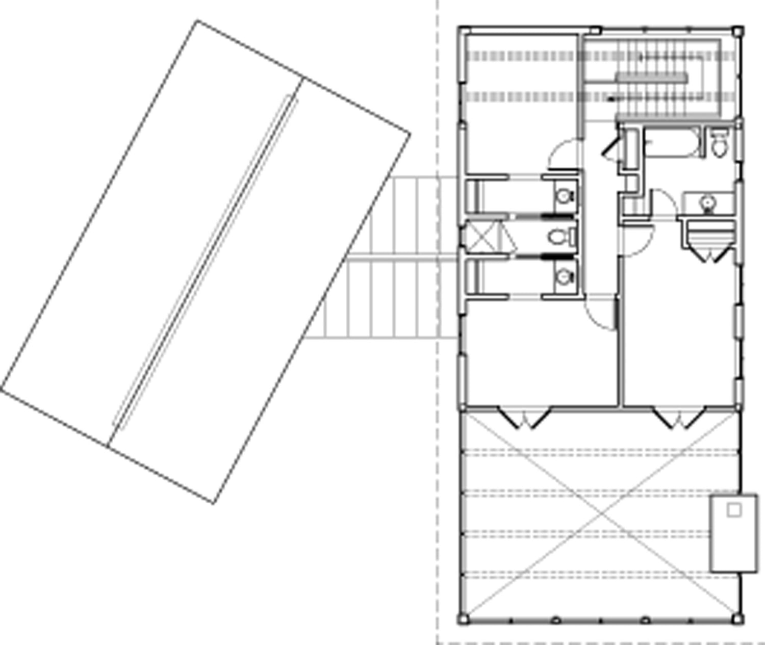
The exterior of the project is designed to restore the original appearance of the house. The interior spaces have been treated as an envelope into which the conveniences of modern living are inserted. The functioning aspects of the project (the kitchen millwork, appliances and fixtures) are treated as separate objects free from constraints of period design and thus represent a straightforward and direct response to the program and are a direct expression of the project and its clients.





