The irreverent card game Cards Against Humanity encourages players to constantly probe the boundaries of offensiveness. The self-proclaimed “party game for horrible people” has grown to become the best-selling game on Amazon.com, and earns that spot because – as it turns out – when you’re with friends, being bad is good.
The same social paradigm that makes the game so fun to play is also what drives the games’ eight founders in their professional endeavors. The group sees social connections and the cross-pollination of ideas as a crucial aspect of a creative culture.
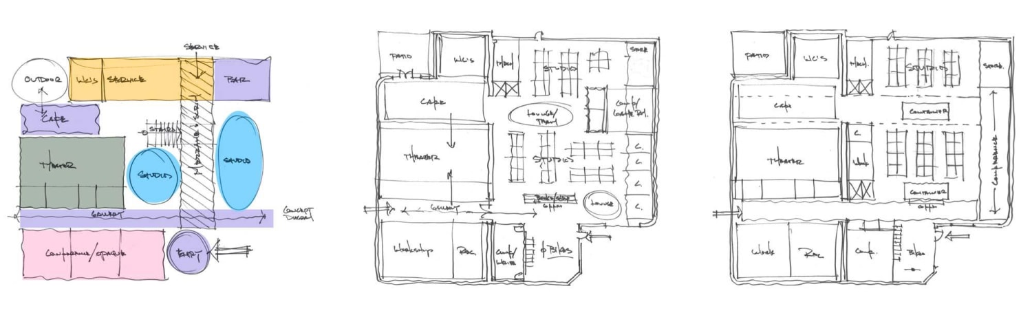
They envision the work-share office typology as an opportunity to bring together graphic designers, artists, photographers and writers into a creative co-working space that encourages collaboration. After years in a cramped storefront office, Cards Against Humanity renovated and moved to a 12,000 square foot warehouse along a busy industrial corridor in Chicago. A new space provided an opportunity to expand their involvement in the local design community and beyond.


















