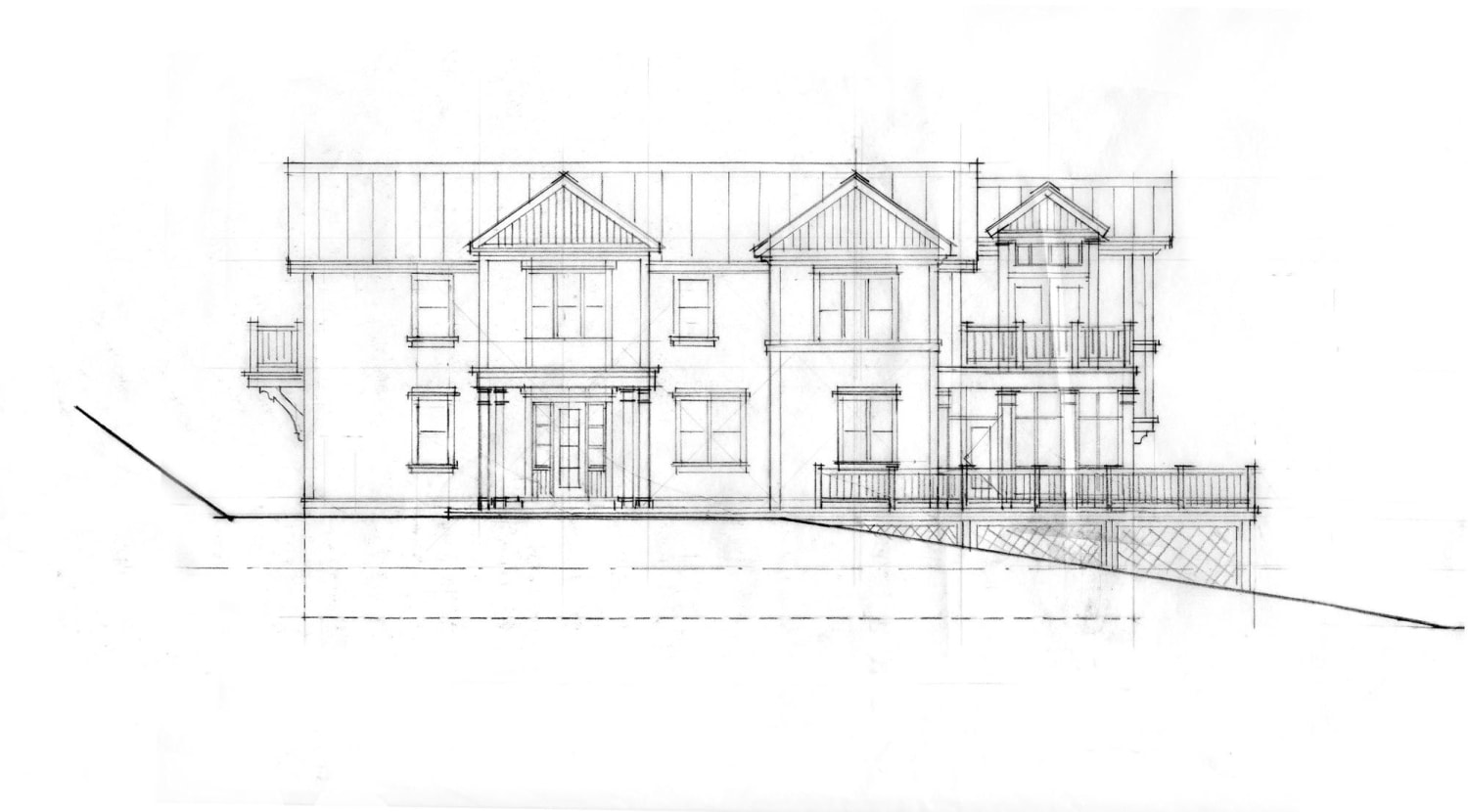
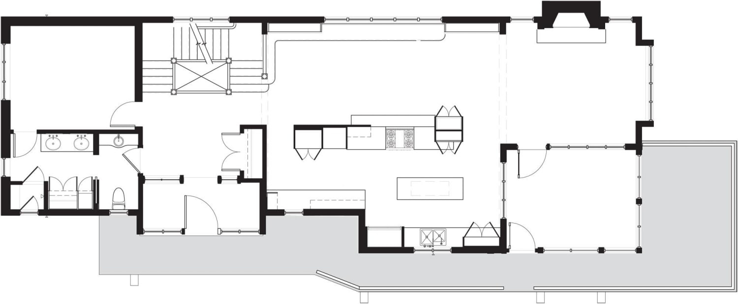
This lake house is a 4-bedroom, 3,400 sf vacation home that rests on a steeply sloped site near the banks of Lake Geneva. The unusually steep, narrow property with its location relative to the lake presented an opportunity to draw unobstructed views through the length of the main living space which is aligned along two clearly defined axes. This horizontal movement is fractured only by an elegant staircase that seamlessly joins the upper two floors with a walk-out basement. The architecture and fenestration of the home mirrors the vocabulary of the neighborhood and preserves a sensitive interface with adjacent structures.








