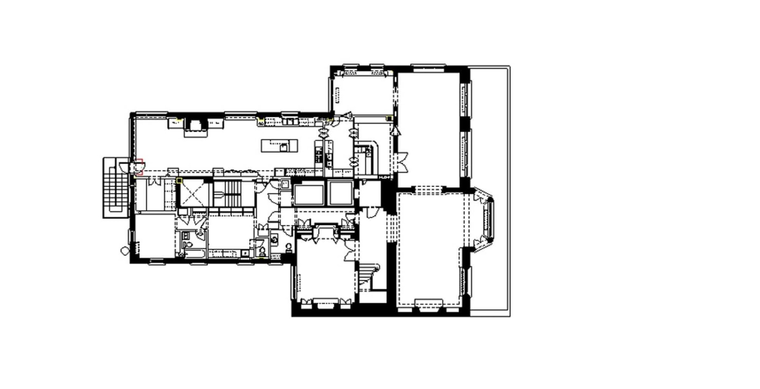
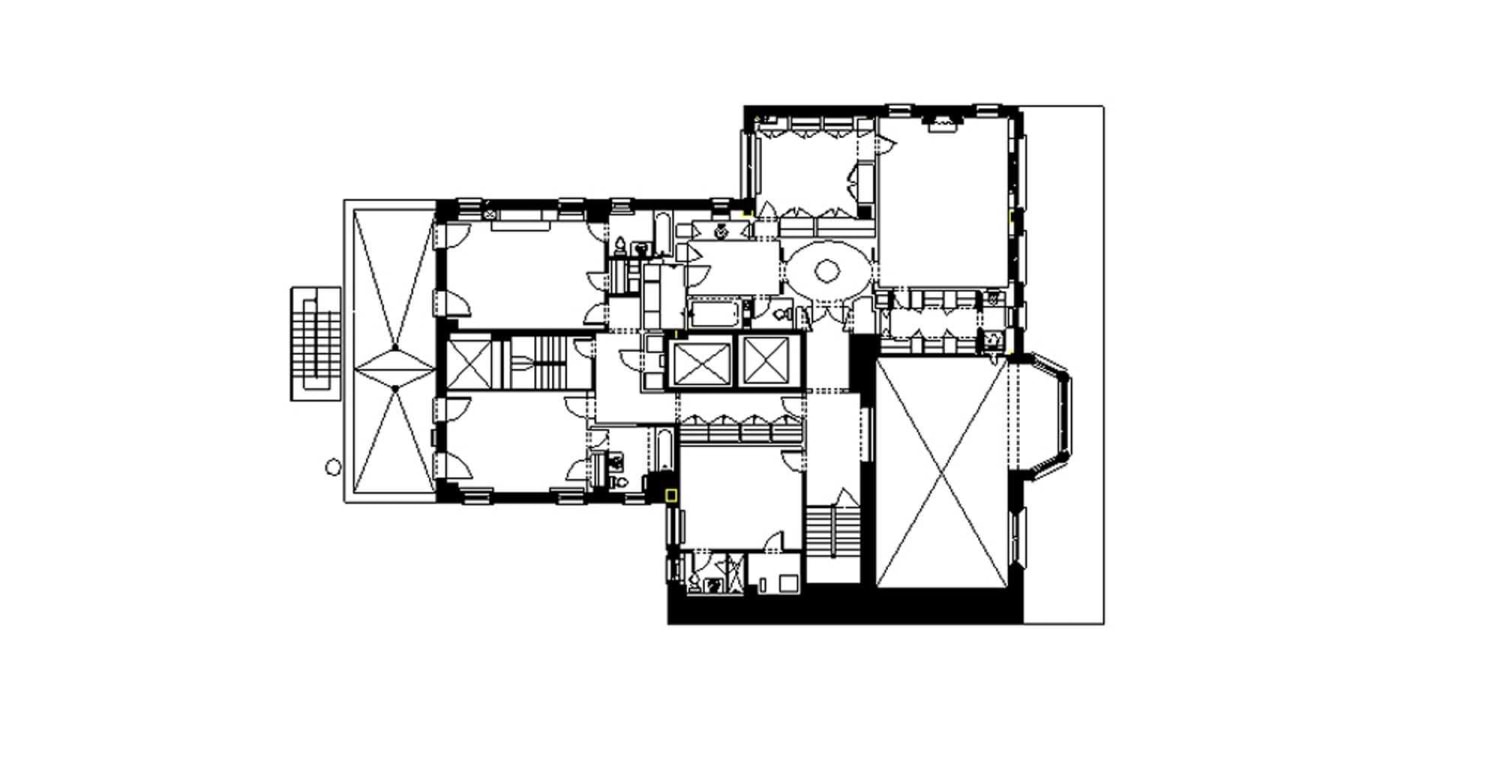
The overall strategy of the project was to recreate the vintage feel and detail of the apartment that had been lost through a series of previous awkward renovations. Maids' rooms were converted into a large kitchen and family room and a new mudroom was created on the ground floor. The second floor highlights a very grand master bedroom suite with highly detailed closets, a vaulted marble bathroom and an oval domed entry rotunda with an inlaid wood floor. Every space in this project maintains an extremely high level of finish and detail while seamlessly integrating state of the art electrical and mechanical systems.










