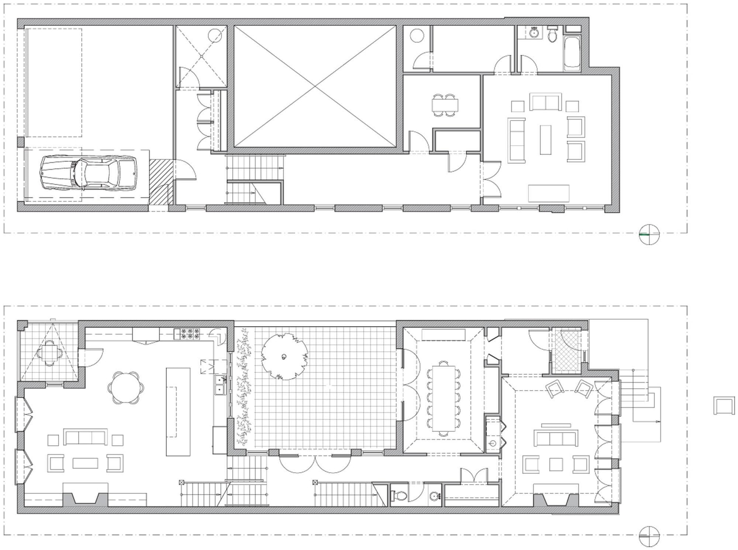
This 7,000 square foot single family residence is part of a larger nine hoe development at Kingsbury and Huron. The first house was built on spec with several different style options offered for later projects.
This 7,000 square foot single family residence is part of a larger nine hoe development at Kingsbury and Huron. The first house was built on spec with several different style options offered for later projects.
Exterior Elevation