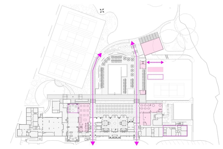
Lake Shore Country Club, designed in 1909 by Howard van Doren Shaw, has maintained a high degree of original architectural character, even through some rather awkward renovations. A reoriented pool, deck, and landscaped gardens restore the circulation path through the club and grounds from the entrance to the lake bluff, as previously intended.
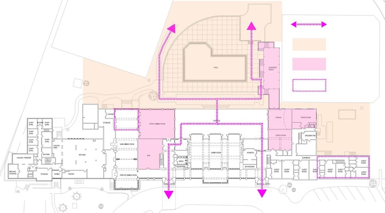
Architectural additions and improvements include bar and lounge, summer dining cabana, pool facilities and lockers. Renovations include tennis locker rooms, main dining hall and living room. The architectural scope adds much needed programming to the club while complementing the original architecture, rather than detracting from it.

















