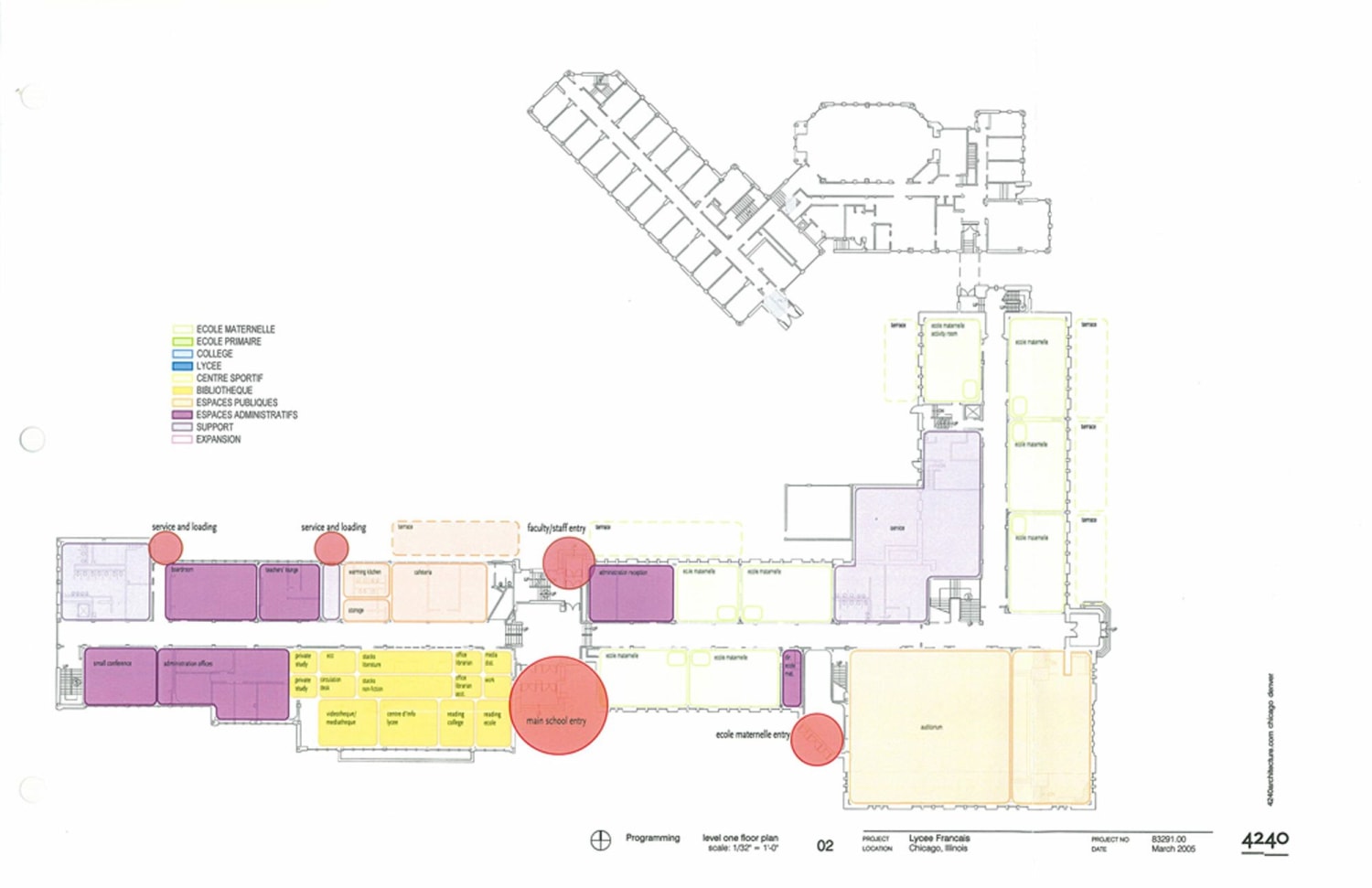
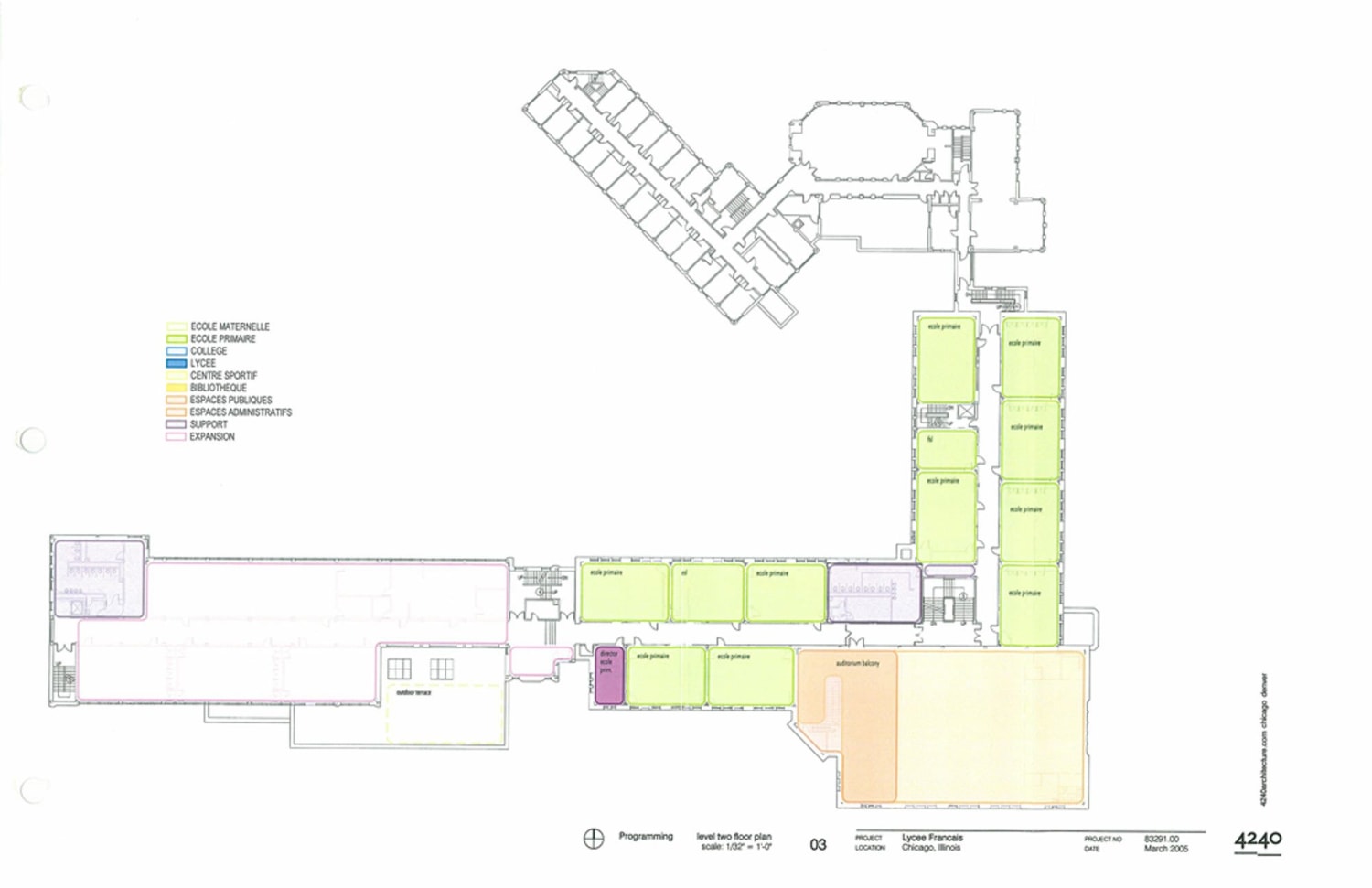
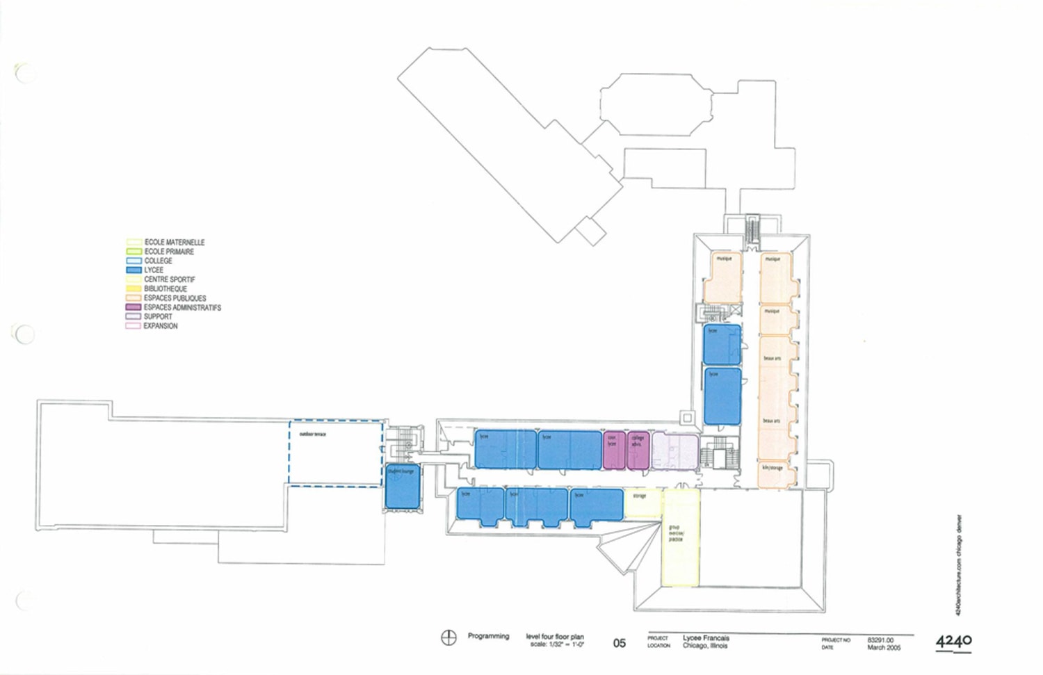
The project involves 135,000 sf of classrooms and support spaces, site planning and financial/budget evaluations. The project team is working with the school, its Board and its staff to create a new and updated facility at its current landmarked location, while helping search for alternative future sites in the city.





