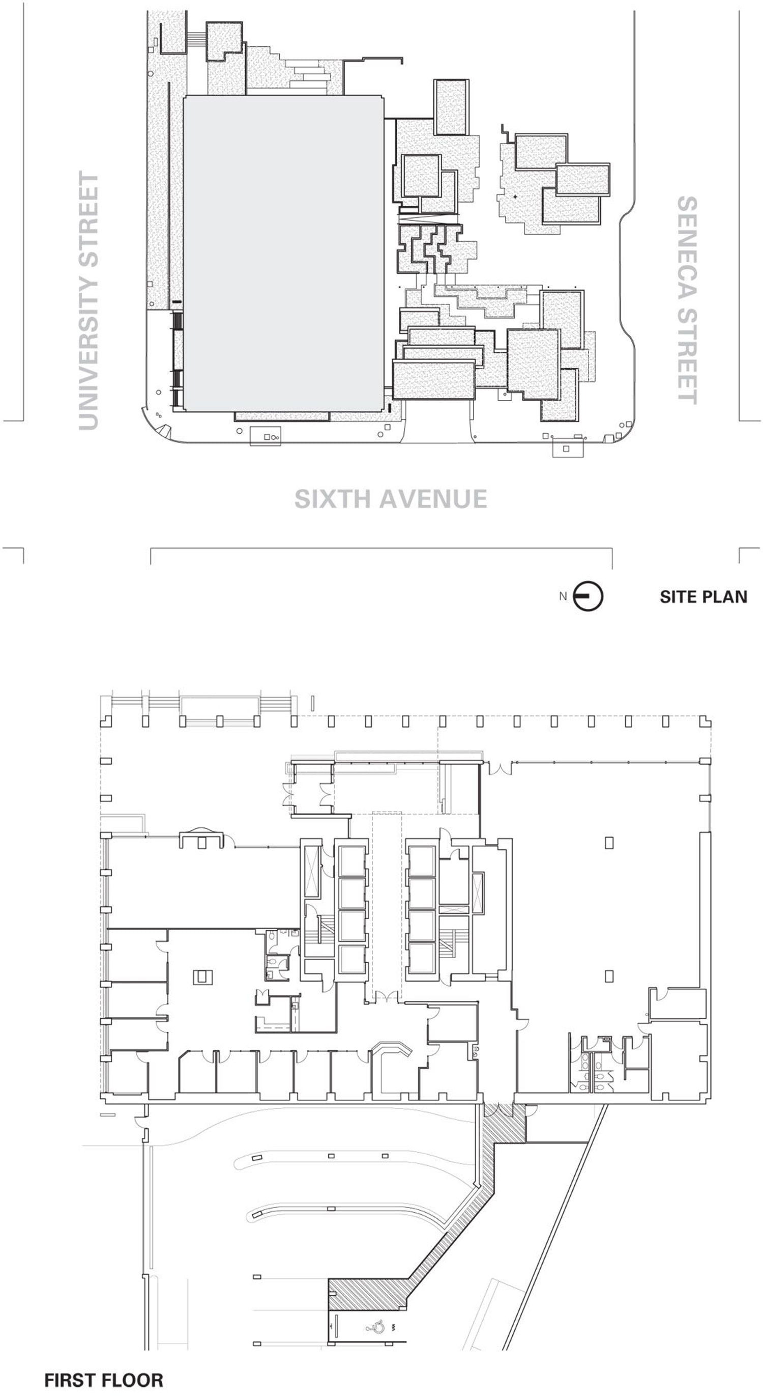
The focus of this project is the intersection between the natural and built environments as a reflection of Seattle’s metropolitan fabric - a unique blending of urban spaces and landscape due to its geographical location. Within its macro/micro context, Park Place becomes a brief moment of clarity where the two contradictory elements intersect.











