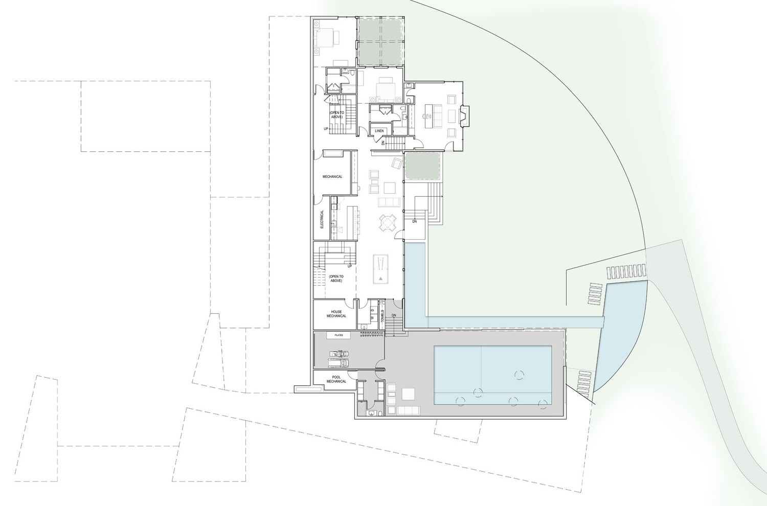
The mass of the house is broken into a series of pavilions of varying transparency that nestle into and step down the site’s sloping topography. The project also includes a tennis court and pavilion, as well as a boathouse, all adhering to a similar typology.
The built form utilizes simple geometric forms topped with a collection of gabled and flat, vegetative roofs. The landscape seems to emerge from the house and is architectural in its organization. As one moves further away from the house, the landscape becomes more picturesque. This, in combination with the vegetative roofs, work to blur the line between built form and landscape. Natural, living materials make up the material palette that will age gracefully.
The home is designed to accommodate entertaining family and friends in a manner that reflects the owners’ sophistication and character.






