Home
Projects
Archive
About
News
von Weise Associates
Home
Projects
Archive
About
News
Home
Projects
Archive
About
News
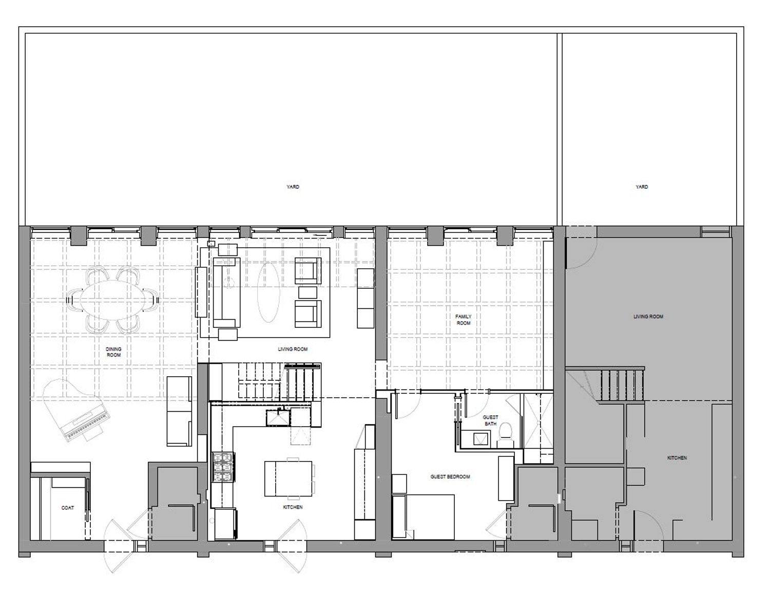
The open light-filled atrium is the focal point of this residential renovation.
Atrium from Above
Living Room
Stairs
Stairs/Book Shelf
Kitchen
Building Section
Floor Plan