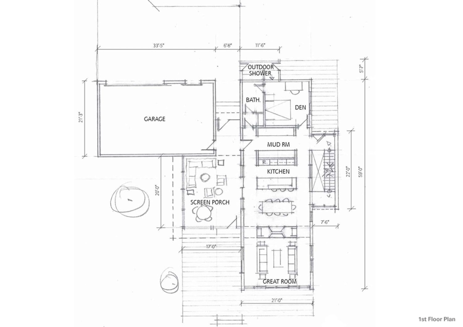
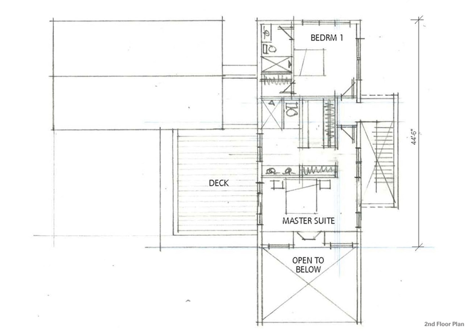
This new construction in the Bethany Beach community in southwest Michigan is a 3-bedroom, 2,700 sf vacation home. Designed to be environmentally responsible, the home features generous natural light. A strong connection between indoors and outdoors is emphasized commensurate with its primary use as a summer/weekend home.








