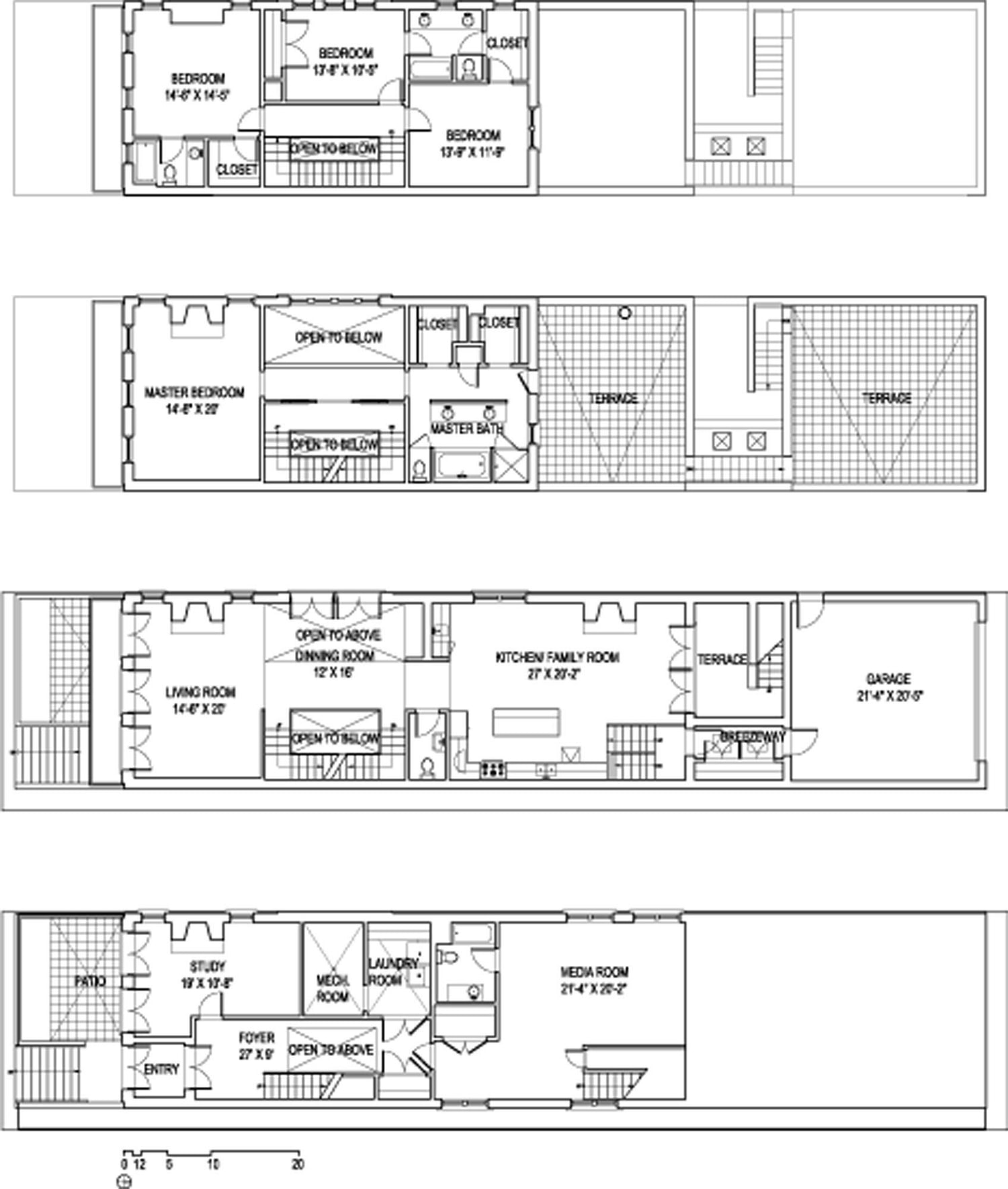
The brick and limestone front and side elevations are intentionally simple and restrained, masking the spatial complexity inside. A 4-story stair atrium and double height dining room combine to take full advantage of the projects’ corner lot in maximizing the amount of light and open space inside.





