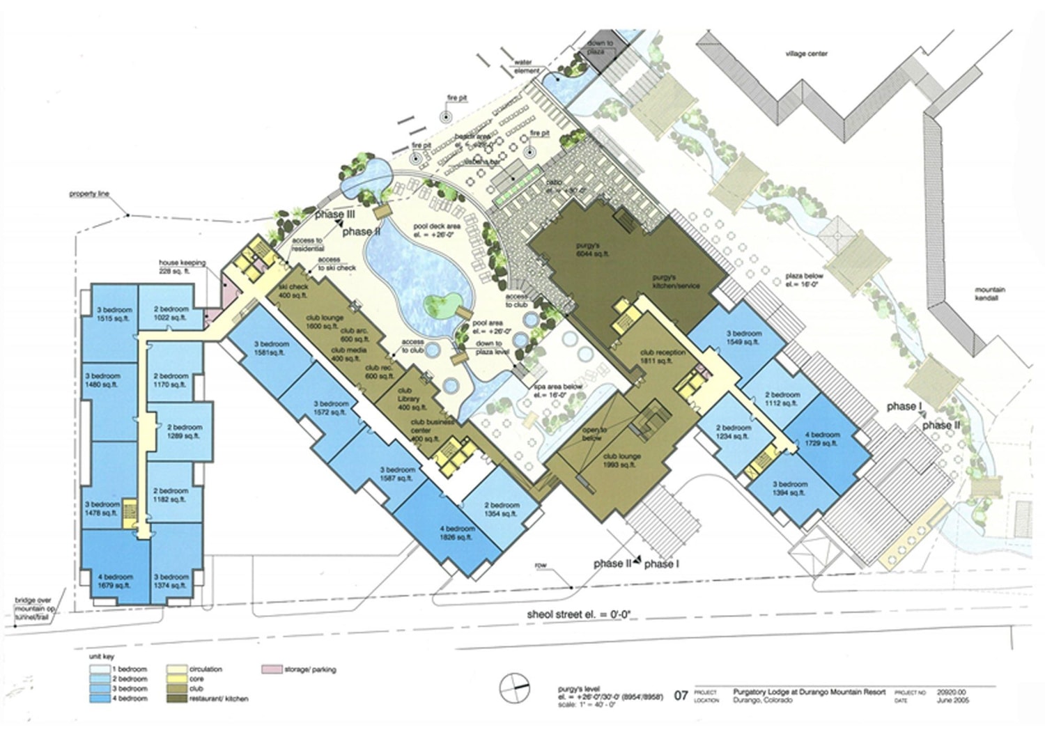
The tributary waters of the Rio De Los Anima and the distinctive stone mesa features which are prevalent throughout the region’s natural typography become key elements in the resort’s conceptual design. Water features flow through the resort and over a series of stepped mesas or plazas much like ancient stone constructions, making a connection between site and historical precedents. The resort includes 221 units with a construction cost of approximately $93 million.
(Completed by Chip von Weise while Design Principal at 4240 Architecture)











