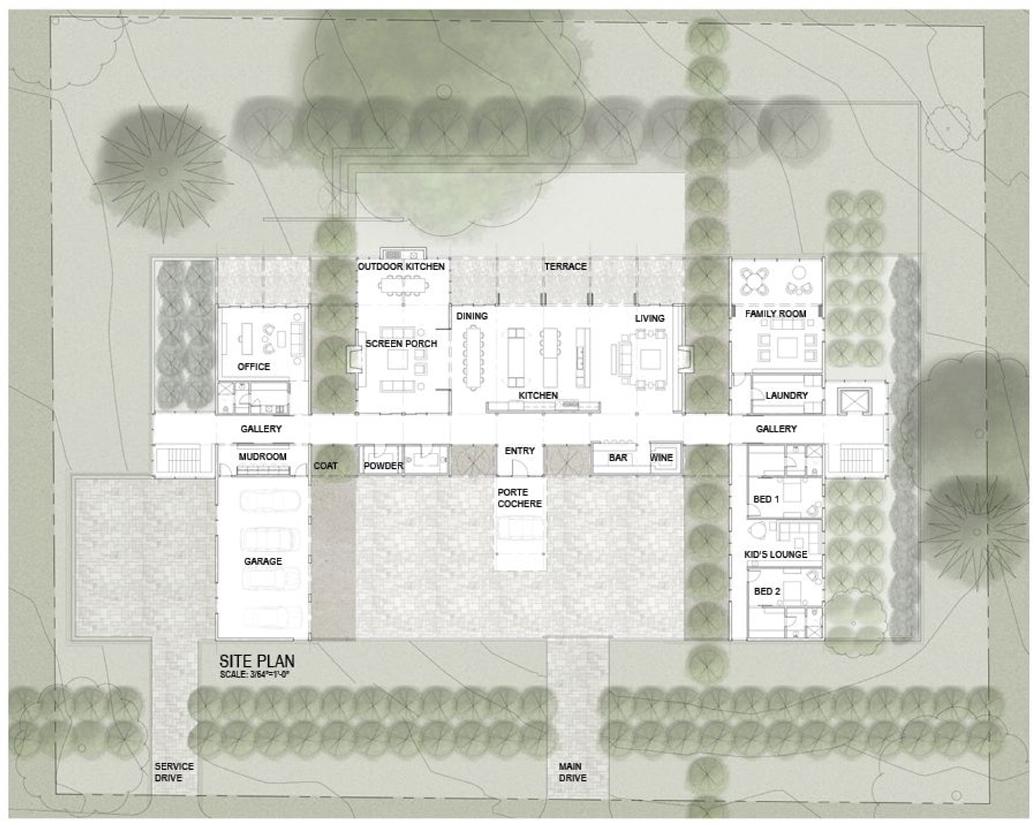
The simple massed building elements form a traditional courtyard estate plan, while the landscape features penetrate the formal plan in contemporary ways. The architecture is defined by finely rendered details and large expanses of glass. A great room and kitchen form the central programmatic element of the residence, connected to the bedroom and service wings of the house with a timber and glass gallery, introducing light and landscape elements into the residence.







