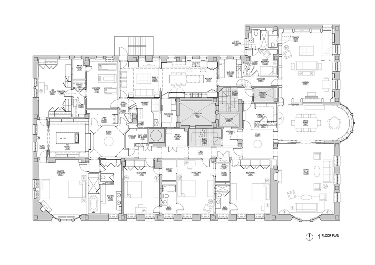
The original unit was designed by Benjamin Marshall in the 1930s and was subdivided into five apartments mid-century. The client, a family of five, purchased the entire floor over time. von Weise Associates patched the unit back together, adhering as closely as possible to the original Marshall plan. Restoring period details to the reconfigured spaces and then layering in modern details, millwork, and furniture created a balance between the original character and a new, modern home. The home is a reflection of the character and sophistication of the client as well as their family-oriented lifestyle.









